Mr. Jaya Prakash's Property
A Dream Home in Bangalore: Designed for Style, Built for Serenity
Start your project with Makers Associates:
Design, plan approvals, construction, & more.
Book your free consultation.
About the project
Amidst Bangalore’s vibrant cityscape, Mr. Jaya Prakash envisioned a modern, serene home that perfectly blends style and comfort. To bring his dream to life, he entrusted Makers Associates, impressed by their efficiency and customer-focused approach.
From the very beginning, the journey was seamless—Makers Associates quickly secured BDA plan approval through their doorstep service, saving Mr. Prakash valuable time and effort. Within just a week, the team delivered a detailed elevation design, complete with precise specifications for paint, textures, and materials.
The design struck the right chord—Mr. Prakash and his family, especially his wife, found it flawless, requiring no revisions. As construction moves forward, Mr. Prakash is already considering Makers Associates for the interiors, confident in their ability to turn his vision into reality.
Grateful for the promptness, professionalism, and dedication shown by the team, Mr. Prakash shares his heartfelt appreciation for making the home-building journey smooth and stress-free.
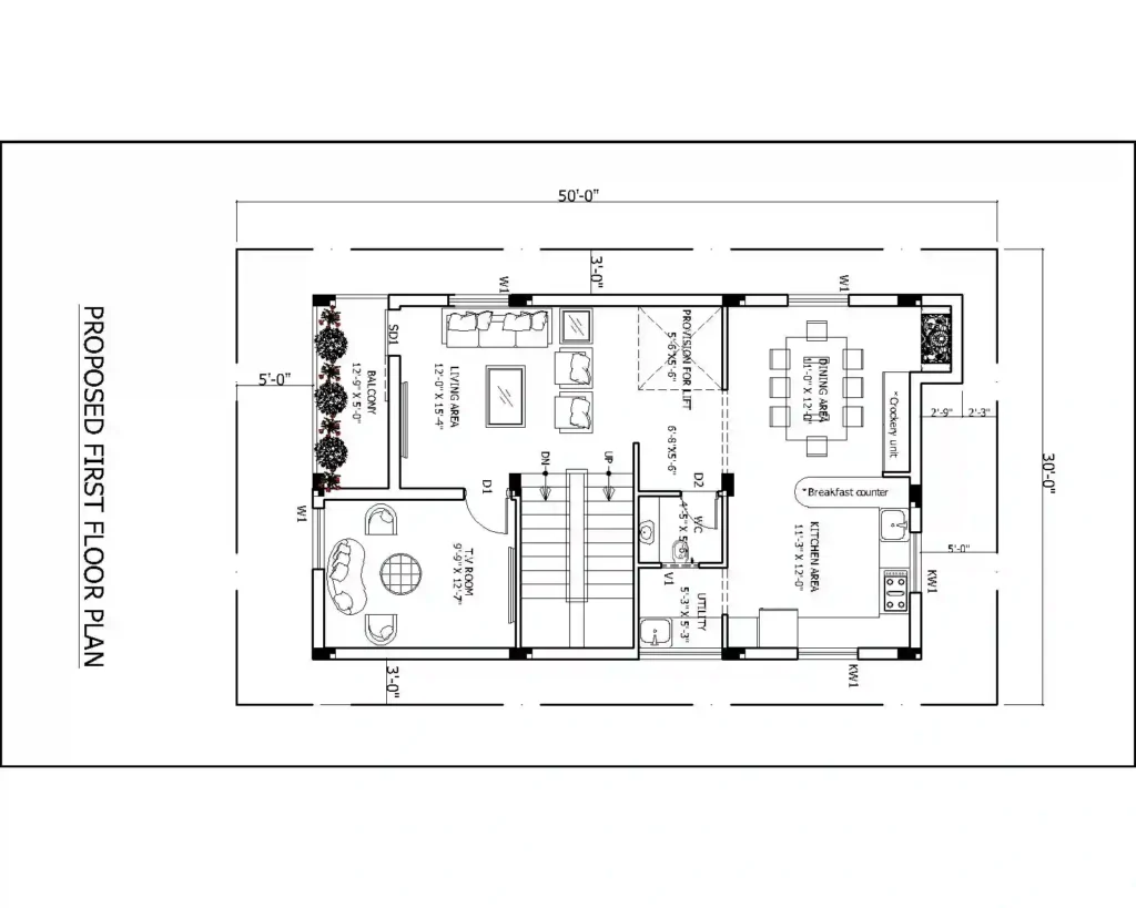
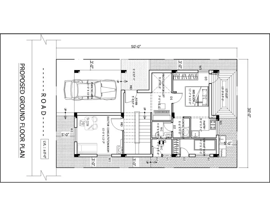
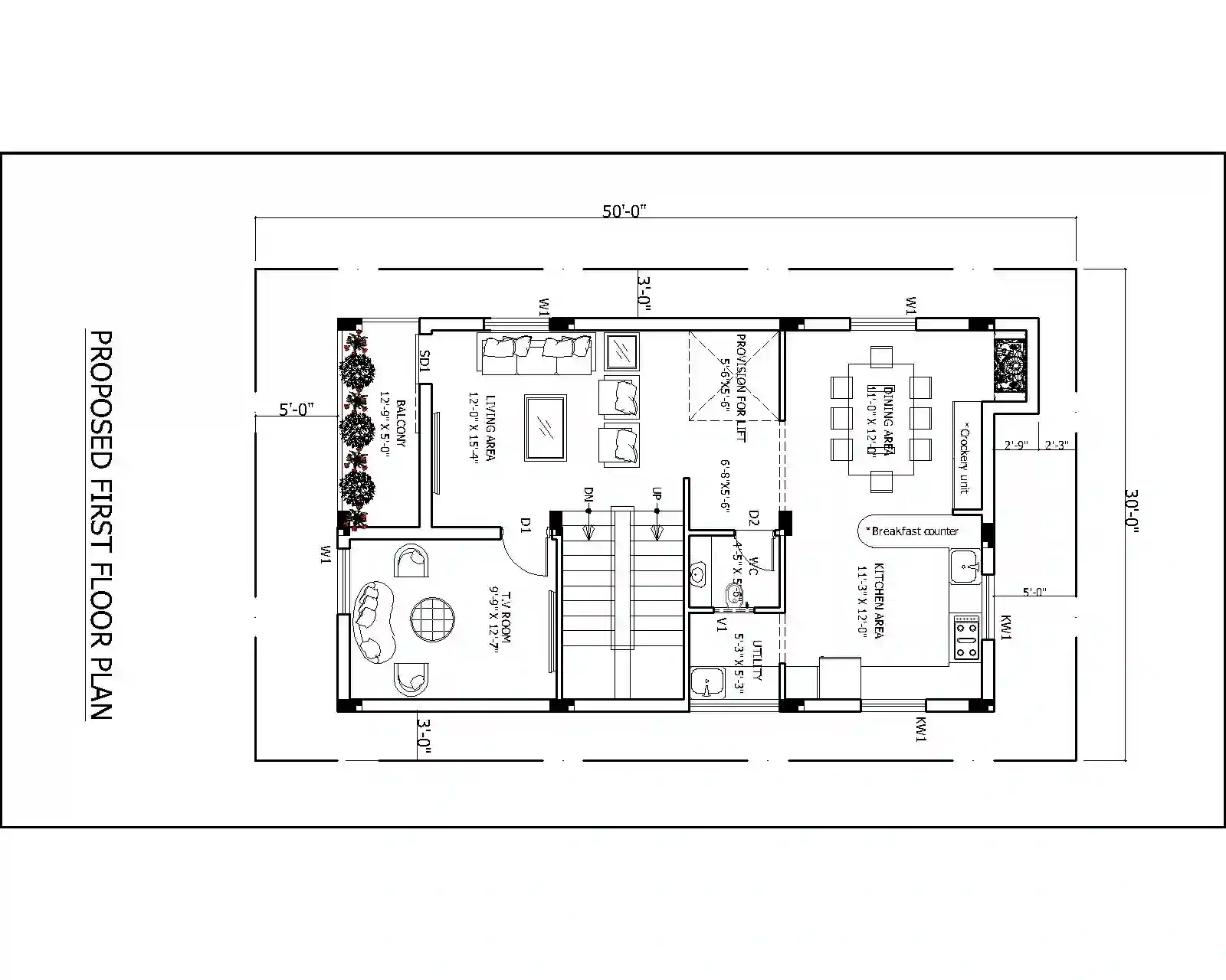
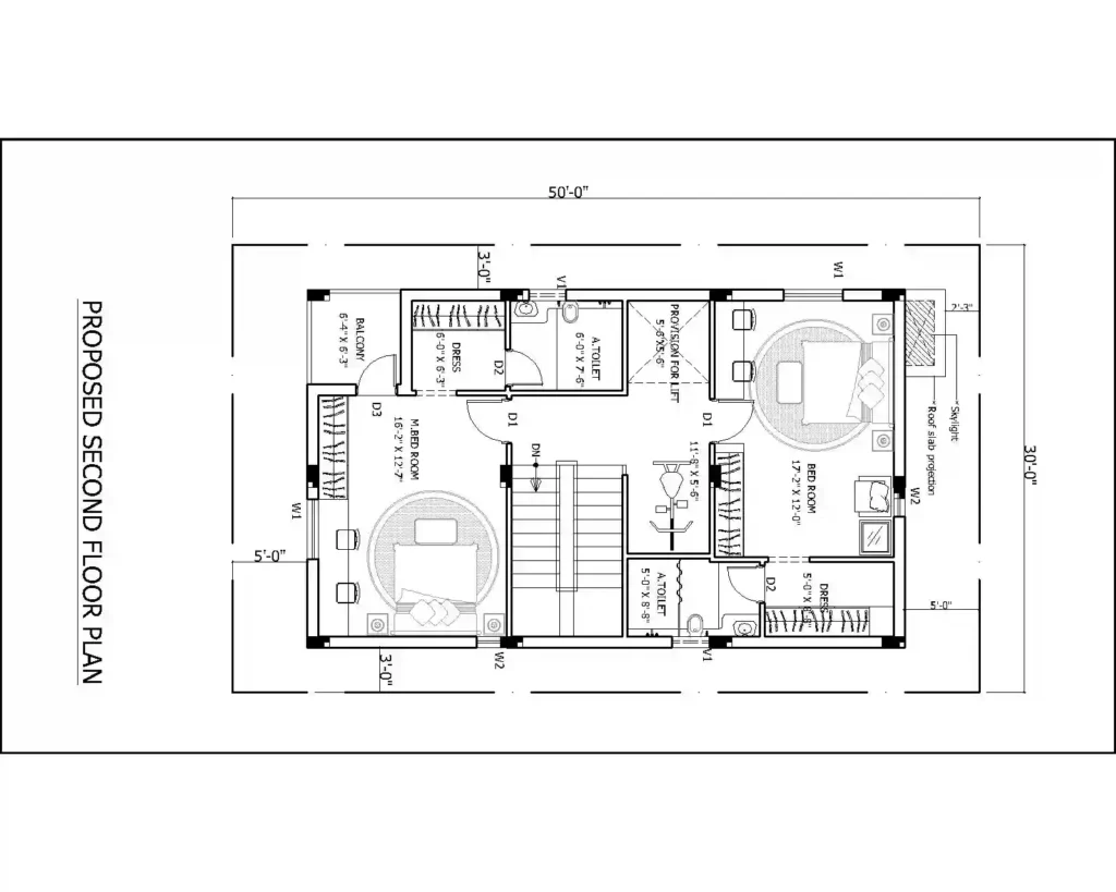
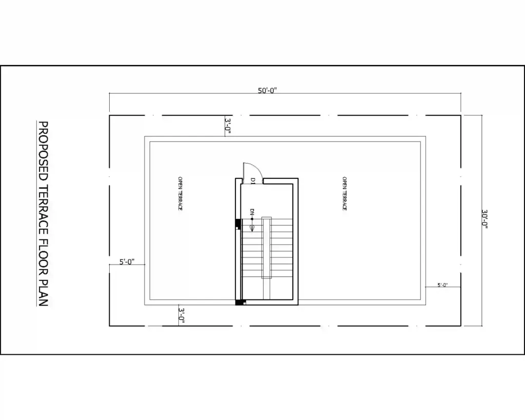
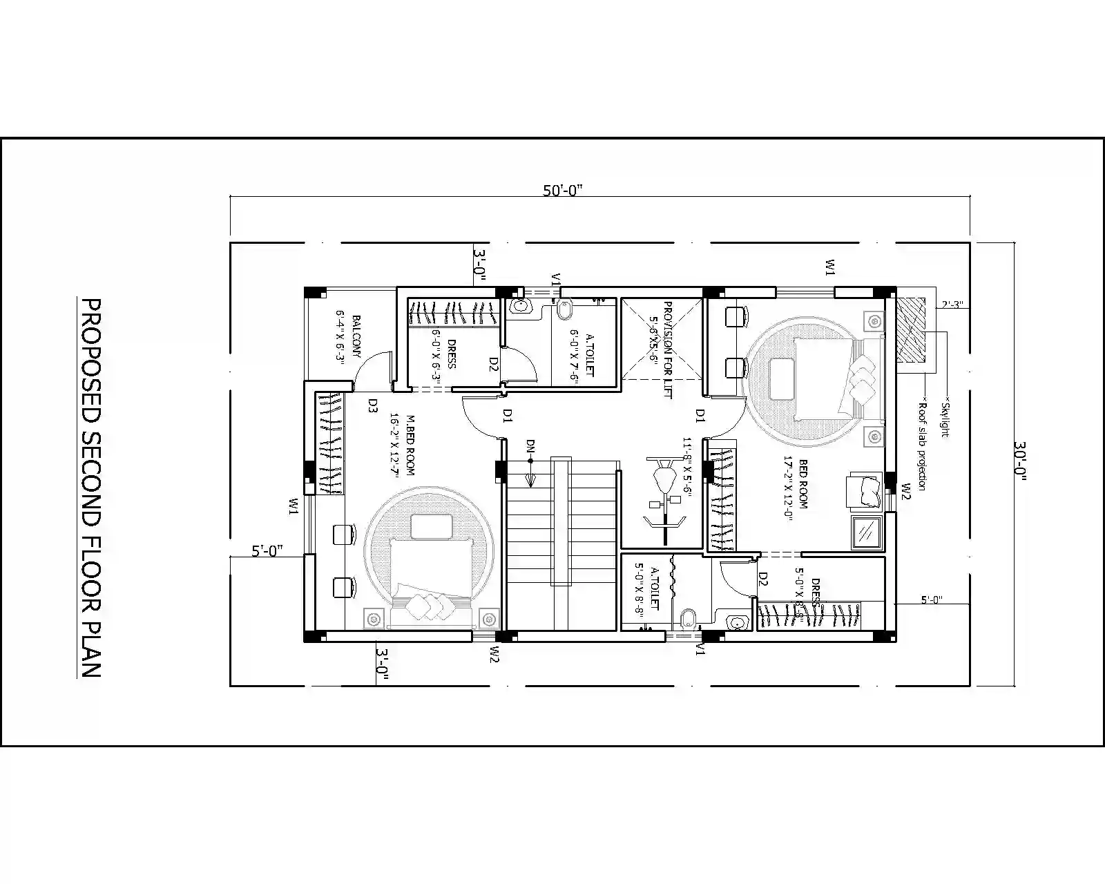
Floor Plan:
At Makers Associates, we believe creating your dream home should be hassle-free and enjoyable. That’s why we provide end-to-end solutions—covering property and Khata services, plan sanction, architectural design, construction, interiors, and project management—all under one roof. With a strong focus on quality, efficiency, and personalized service, we take pride in delivering thoughtfully designed, functional living spaces that stand out across Bengaluru.


