Mr. Manish's Property
A Modern Retreat in Bangalore: A Vision Realized
Start your project with Makers Associates:
Design, plan approvals, construction, & more.
Book your free consultation.
About the project
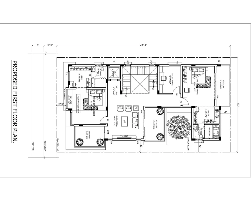
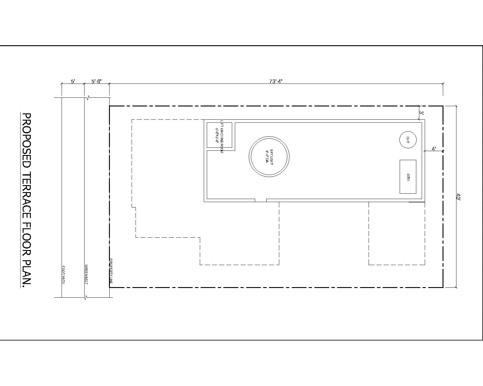
Set against the lush backdrop of Bangalore, Mr. Manish’s residence stands as a perfect example of contemporary architecture blended with warmth and elegance. The multi-level design features sloping roofs, bold geometric lines, and carefully placed greenery, creating a balance between modern sophistication and homely comfort.
What makes this home truly special is its attention to detail—the interplay of brick textures with sleek finishes, wide glass windows that flood the interiors with natural light, and open terraces that invite fresh air and serenity. Every corner of the property reflects thoughtful planning, with functionality seamlessly merging with style.
Behind this transformation is Makers Associates, the team that turned Mr. Manish’s dream into reality. From plan approvals and elevation design to meticulous specifications for materials and finishes, their process was swift, transparent, and client-focused. What’s more, the first design itself struck perfection—earning instant approval from the entire family.
As the home moves closer to completion, Mr. Manish is looking forward to engaging Makers Associates for the interiors, confident that their expertise will add the same charm inside that now graces the exterior.
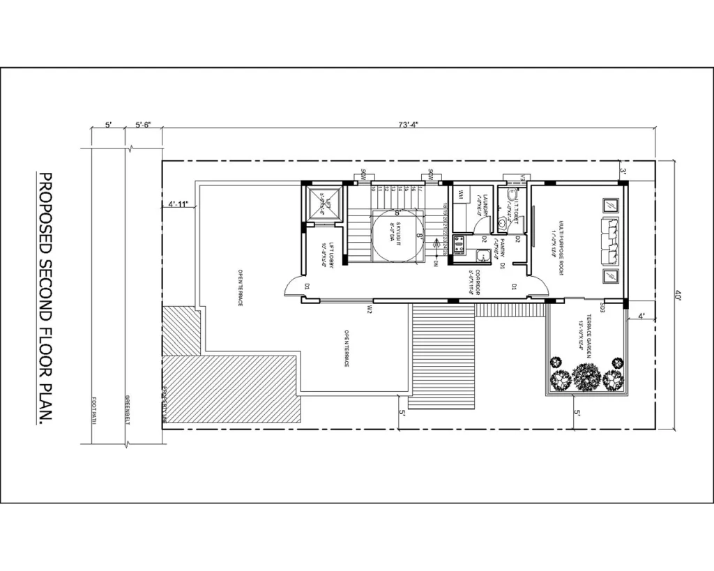
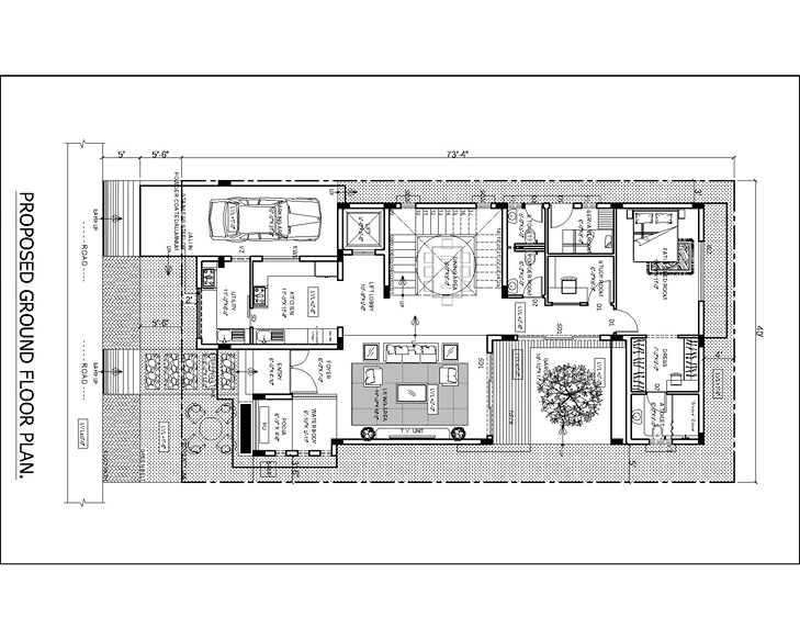
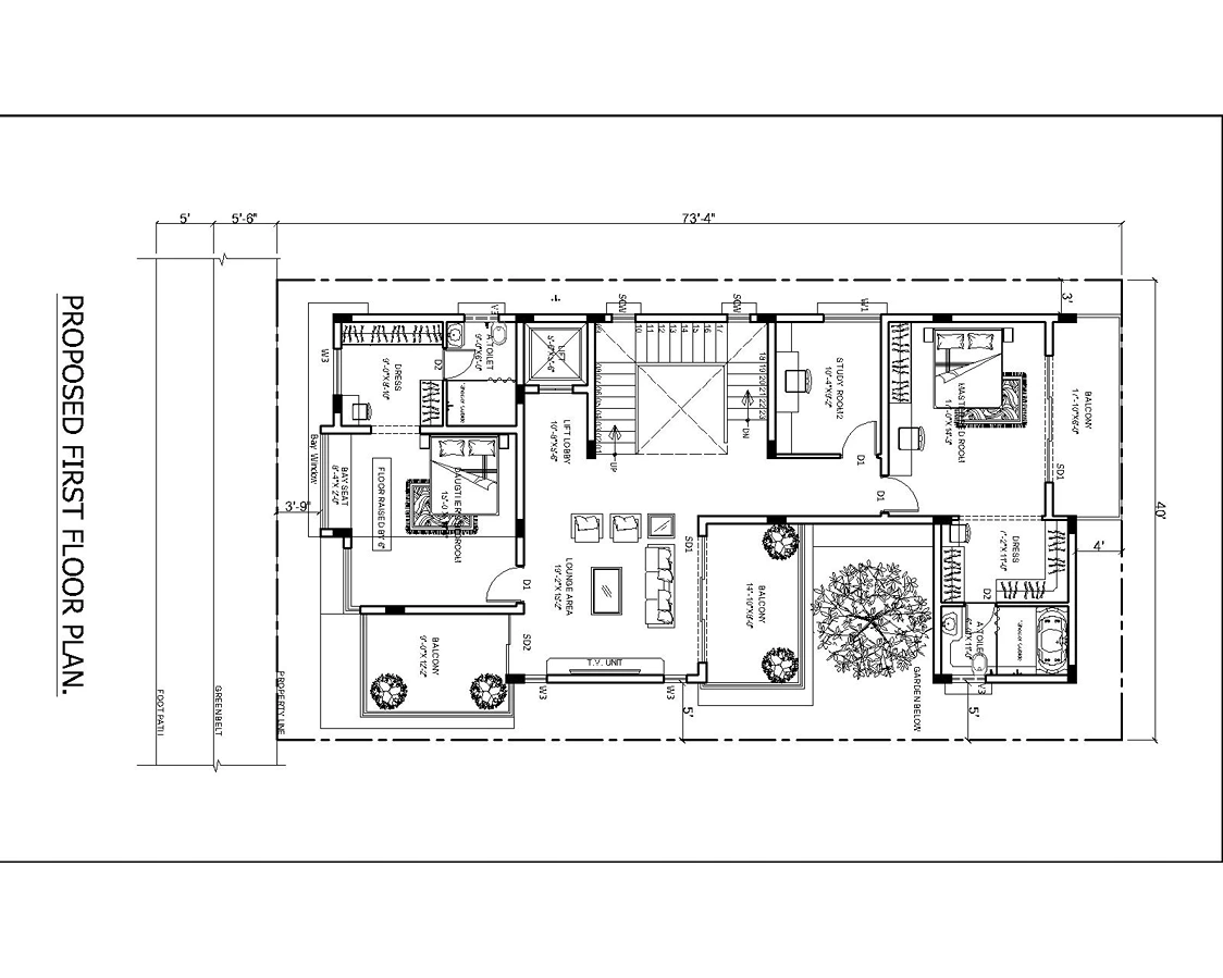
Floor Plan:
At Makers Associates, our philosophy is simple—building homes that feel effortless yet extraordinary. With complete solutions that include Khata services, approvals, design, construction, and project management, we make sure every family’s journey toward their dream home is as stress-free as possible.



